VL-FONDEN
Home
Om fonden
Feriehus
Studieture
Louisiana
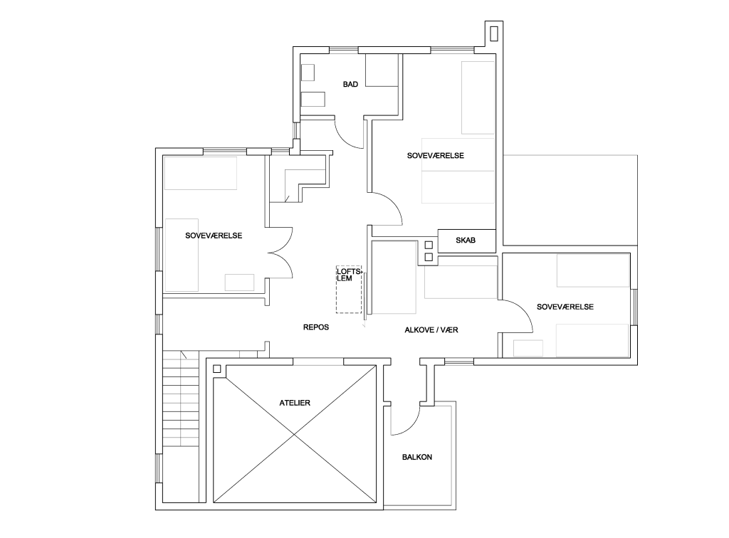
Plantegninger